Bilocale in vendita

Roma, Via Enrico Mazzoccolo - Don Bosco
€ 195.000
2 locali 2 locali
63 Mq 63 Mq
1 bagno 1 bagno

Bilocale in vendita

Roma, Via Enrico Mazzoccolo - Don Bosco

Descrizione annuncio

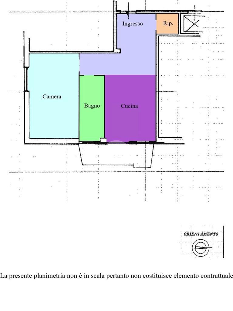
Via Enrico Mazzoccolo - A pochi passi da Piazza San Giovanni Bosco, in una zona tranquilla e ben servita, proponiamo un luminoso bilocale di 63 mq commerciali, posto al 5° piano di una palazzina di 7 con ascensore. L’appartamento, ristrutturato nel 2019, si distingue per ambienti funzionali e ben distribuiti: un ingresso accogliente; un comodo ripostiglio; una spaziosa zona living con cucina a vista dotata di condizionatore e con accesso diretto al balcone; un bagno finestrato con doccia e una camera matrimoniale anch’essa dotata di condizionatore. L’immobile dispone, inoltre, di una caldaia a gas per l’acqua calda e di una cantina di pertinenza.

Il riscaldamento è centralizzato.

L’esposizione sud-est garantisce un’ottima luminosità per gran parte della giornata. Una soluzione ideale per chi vuole investire su un immobile situato in un contesto tranquillo e, allo stesso tempo, vicino a tutti i servizi e ai collegamenti principali.

La zona in cui è ubicato l’appartamento, infatti, è molto ben servita sia per quanto riguarda i trasporti pubblici, (la fermata della Metro A ''Giulio Agricola'' è facilmente raggiungibile a piedi) e i servizi (scuole, parchi, palestre), sia per quanto riguarda le attività commerciali, in particolare quelle di Via Tuscolana e il mercato rionale Carlo Calisse.

Classe Energetica G - Indice Prestazione Energetica (IPE) : 175 Kwh/m2/anno.

Mostra tutto

Nelle vicinanze

Trasporto pubblico Trasporto pubblico
Giulio Agricola
Giulio Agricola
710 m
Subaugusta
Subaugusta
830 m
Centocelle
Centocelle
1,6 Km
Balzani
Balzani
2,2 Km
Centocelle
Centocelle
1,6 Km
Ricariche auto elettriche Ricariche auto elettriche
Eneldrive Cinecittà
860 m
Eneldrive Autorimessa Primula
2,3 Km
Roma Alimena | EnelX
2,8 Km
Scuole Scuole
Liceo Scientifico Statale Teresa Gullace
160 m
Scuola media Italo Svevo
160 m
Scuole
250 m
istituto comprensivo rita levi montalcini
280 m
Liceo Artistico Statale
320 m
Farmacia Farmacia
Farmacia
170 m
Farmacia De Cesaris
660 m
Farmacia Cinecittà
690 m
Farmacia Dessi
760 m
Farmacia Tanzini
810 m
Ospedali Ospedali
Farmacia Berna
80 m
Casa di riposo Bruno Buozzi
1,4 Km
Ambulatorio Policlinico Casilino – Edificio D
1,8 Km
Policlinico Casilino
1,9 Km
NCL
2,4 Km
Supermercati Supermercati
Cartolibreria
330 m
Supermercati
350 m
Pewex
510 m
Tuodì
600 m
In's
630 m
Negozi Negozi
Pan di Zenzero
330 m
Pellicce Alviano
430 m
La Bottega di Noi
480 m
AM
490 m
Alimentari, frutta e verdura
520 m
Bar Bar
Bar
310 m
Ludel
610 m
Bar D'Amico
770 m
American bar
800 m
Bar La Torretta
970 m
Ristoranti Ristoranti
Stella Sushi
100 m
Sforno
490 m
Pomò
510 m
Archimede
590 m
Sellero & Ventresca
610 m
Mostra tutto

Caratteristiche

Rif.:
61123775
Piano:
5 di 7 con ascensore (Piano alto)
Balconi:
1
Camere da letto:
1
Arredamento:
Completo
Condizionamento:
Autonomo
Mostra tutto
Prezzo Prezzo
€ 195.000
Rata mutuo Rata mutuo
€ 896 / mese
Spese annue Spese annue
€ 1.200
Proponi il tuo prezzoProponi il tuo prezzo

Classe Energetica

G
G
G
G
G
G
G
G
G
EP globale non rinnovabile:
175.00 kW h/m² anno
EP globale rinnovabile:
175.00 kW h/m² anno
Anno di costruzione:
1958
Riscaldamento:
Centralizzato
Tipo impianto:
A radiatori
Tipo alimentazione:
Metano

Ti interessa visionare l'immobile?

Fissa un appuntamento  Fissa un appuntamento

Richiedi informazioni

* Questi campi sono obbligatori

Calcola il tuo mutuo

Semplice e senza impegno
Anticipo

( % )
Mutuo

( % )

pochi semplici passi

inserisci i tuoi dati
Questionario completato
Grazie per aver richiesto un appuntamento senza impegno con un nostro Consulente del Credito e Assicurativo.

Hai inserito correttamente tutti i dati necessari e a breve riceverai una e-mail con un link da convalidare per inviare i tuoi dati.
Affiliato
Studio Fiamma Srl
Via Calpurnio Fiamma, 57 00175 Roma (RM)

Il nostro staff


  • Danilo Ceci
    Affiliato

  • Gianfranco Milione
    Affiliato
Via Calpurnio Fiamma, 57 00175 Roma (RM)
Zona: Tuscolana-Don Bosco-Piazza Di Consoli
Mostra su mappa
Orari: Dal lunedì al venerdì dalle ore 09.00 alle ore 19.30; sabato 09.00-13.00 e 15.30-17.00
Affiliato
Studio Fiamma Srl
Via Calpurnio Fiamma, 57 00175 Roma (RM)

2025 Tecnocasa Franchising S.p.A. - P. IVA 08365160152 - Via Monte Bianco 60/A 20089 Rozzano (MI). Ogni agenzia ha un proprio titolare ed è autonoma. Privacy policy | Policy utilizzo | Cookie policy